J41H/W美标截止阀
- 销售:
- 销售:
- 传真:
详情介绍
- 产品介绍
- 服务承诺
- 订货流程
J41H/W美标截止阀适用于公称压力PN1.6~16MPa,工作温度-29~550℃的石油、化工、制药、化肥、电力行业等各种工况的管路上,切断或接通管路介质。驱动方式有手动、齿轮传动、电动、气动等。
美标截止阀 结构特点
①产品的设计制造符合美国国家标准ANS1B16.34,美国BS1873等国外先进标准要求。
②阀体外形为桶形或流线形造型美观。流通形状为直通式。流体阻力小。
③关闭件(闸瓣)与阀座密封面采用锥面密封,关闭力小,耐冲刷,密封可靠。
④阀座可为更换式阀座,可任意组合与关闭密封面材料的配对,以满足工况的要求,延长使用寿命。
⑤大口径、高压力截止阀根据关闭力的需要阀杆的传动方式采用升降杆,并配有滚动轴承式采用撞击式手轮以减轻关闭力。
⑥主体材料、内件材料、填料、紧固件的材料可按用户要求或实际工况条件合理组合。
美标截止阀 设计标准
设计与制造 | 结构长度 | 法兰尺寸 | 对焊连接尺寸 | 压力-温度 | 试验-检验 |
ANSI B16.34 BS1873 | ANSI B16.10 | ANSI B16.5 | ANSI B16.25 | ANSI B16.34 | API 598 |
美标截止阀 压力试验
公称压力PN(Lb) | 强度试验 | 气密封试验 | 气密封试验 | |||
MPa | Lbf/in2 | MPa | Lbf/in2 | MPa | Lbf/in2 | |
150 | 3.0 | 430 | 2.2 | 315 | 0.4-0.7 | 60-100 |
300 | 7.7 | 1110 | 5.7 | 815 | ||
600 | 15.3 | 2220 | 11.3 | 1630 | ||
900 | 23.0 | 3330 | 17.0 | 2445 | ||
1500 | 38.4 | 5560 | 28.2 | 4080 | ||
2500 | 64.0 | 9255 | 47.0 | 6790 | ||
美标截止阀 主要零件材料
体、盖 | 阀杆 | 密封面 | 垫片(环) | 填料 | 工作温度 | 适用介质 |
WCB | 2Cr13 | 13Cr | 增强柔性石墨 | 柔性石墨 | ≤425 | 水 |
WC1 | 38CrMoAl 25Cr2MoV | ≤425 | ||||
WC6 | ≤540 | |||||
WC9 | ≤570 | |||||
C5 C12 | ≤540 | |||||
CF8 | F304 | ≤200 | 硝酸 | |||
CF8M | F316 | |||||
CF3 | F304L | |||||
CF3M | F316L |

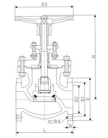
美标截止阀 主要外形尺寸
DN | 150Lb 凸面法兰(RF) 主要尺寸(mm) | 重量 | ||||||||
mm | in | L | D | D1 | D2 | b | n-φd | H | D0 | |
15 | 1/2 | 108 | 89 | 60.5 | 35 | 11.2 | 4-16 | 241 | 100 | 6.9 |
20 | 3/4 | 117 | 98 | 69.9 | 43 | 12.7 | 4-16 | 241 | 100 | 9.8 |
25 | 1 | 127 | 108 | 79.2 | 51 | 14.2 | 4-16 | 242 | 125 | 13.5 |
32 | 11/4 | 140 | 117 | 89 | 63 | 16 | 4-16 | 280 | 160 | 19.5 |
40 | 11/2 | 165 | 127 | 98.6 | 73 | 17.5 | 4-16 | 286 | 160 | 28.5 |
50 | 2 | 203 | 152 | 120.7 | 92 | 19 | 4-19 | 368 | 200 | 18 |
65 | 21/2 | 216 | 178 | 139.7 | 105 | 22.4 | 4-19 | 387 | 200 | 30 |
80 | 3 | 241 | 190 | 152.4 | 127 | 24 | 4-19 | 411 | 250 | 41 |
100 | 4 | 292 | 229 | 190.5 | 157 | 24 | 4-19 | 454 | 250 | 64 |
125 | 5 | 356 | 254 | 216.0 | 186 | 24 | 8-22.5 | 455 | 350 | 86 |
150 | 6 | 406 | 279 | 241.3 | 216 | 25.4 | 8-22.5 | 541 | 350 | 113 |
200 | 8 | 495 | 343 | 298.5 | 270 | 28.4 | 8-22.5 | 651 | 450 | 178 |
250 | 10 | 622 | 406 | 362.0 | 324 | 30.2 | 12-25.4 | 800 | 450 | 270 |
300 | 12 | 698 | 483 | 431.8 | 381 | 32 | 12-25.4 | 1231 | 600 | 350 |
350 | 14 | 787 | 533 | 476.3 | 413 | 35 | 12-29 | 1450 | 600 | 460 |
400 | 16 | 914 | 597 | 539.8 | 470 | 36.6 | 26-29 | 1645 | 600 | 590 |
DN | 300Lb 凸面法兰(RF) 主要尺寸(mm) | 重量 | ||||||||
15 | 1/2 | 152 | 95 | 66.5 | 35 | 14.2 | 4-16 | 241 | 140 | 7.7 |
20 | 3/4 | 178 | 117 | 82.5 | 43 | 16 | 4-19 | 241 | 140 | 11.3 |
25 | 1 | 203 | 123 | 89 | 51 | 17.5 | 4-19 | 283 | 160 | 16.8 |
32 | 11/4 | 216 | 133 | 98.5 | 63 | 19 | 4-19 | 320 | 200 | 21.2 |
40 | 11/2 | 229 | 155 | 114.3 | 73 | 20.6 | 4-22.5 | 322 | 200 | 32.6 |
50 | 2 | 267 | 165 | 127 | 92 | 22.4 | 8-19 | 399 | 200 | 25 |
65 | 21/2 | 292 | 190 | 149.4 | 105 | 25.4 | 8-22.5 | 438 | 250 | 30 |
80 | 3 | 318 | 210 | 168.1 | 127 | 28.4 | 8-22.5 | 464 | 280 | 35 |
100 | 4 | 356 | 254 | 200.2 | 157 | 31.8 | 8-22.5 | 565 | 350 | 56 |
125 | 5 | 400 | 279 | 235 | 186 | 35 | 8-22.5 | 614 | 350 | 96 |
150 | 6 | 444 | 318 | 269.7 | 216 | 36.6 | 12-25.4 | 717 | 400 | 120 |
200 | 8 | 559 | 381 | 330.2 | 270 | 41.2 | 12-25.4 | 930 | 500 | 212 |
250 | 10 | 622 | 444 | 387.4 | 324 | 47.8 | 16-28.5 | 1012 | 550 | 330 |
300 | 12 | 711 | 521 | 450.8 | 381 | 50.8 | 16-32 | 1231 | 600 | 472 |
350 | 14 | 762 | 584 | 514.4 | 413 | 54 | 20-32 | 1450 | 600 | 715 |
400 | 16 | 864 | 648 | 571.5 | 470 | 57.2 | 20-35 | 1645 | 600 | 920 |
DN | 600Lb 凸面法兰(RF)主要尺寸(mm) | 重量 | ||||||||
mm | in | L | D | D1 | D2 | b | n-φd | H | D0 | |
15 | 1/2 | 165 | 95 | 66.5 | 35 | 14.5 | 4-16 | 285 | 100 | 7.8 |
20 | 3/4 | 190 | 117 | 82.5 | 43 | 16 | 4-19 | 285 | 125 | 12.5 |
25 | 1 | 216 | 124 | 89 | 51 | 17.5 | 4-19 | 313 | 160 | 17.5 |
32 | 11/4 | 229 | 133 | 98.5 | 63 | 21 | 4-19 | 328 | 160 | 23.5 |
40 | 11/2 | 241 | 156 | 114.3 | 73 | 22.5 | 4-22.5 | 365 | 180 | 38.5 |
50 | 2 | 292 | 165 | 127 | 92 | 33 | 8-19 | 444 | 200 | 35 |
65 | 21/2 | 330 | 190 | 149.4 | 105 | 36 | 8-22.5 | 483 | 250 | 50 |
80 | 3 | 356 | 210 | 168.1 | 127 | 39 | 8-22.5 | 533 | 250 | 60 |
100 | 4 | 432 | 273 | 216 | 157 | 45 | 8-25.4 | 622 | 350 | 110 |
125 | 5 | 508 | 330 | 266.7 | 186 | 52 | 8-28.5 | 750 | 350 | 200 |
150 | 6 | 559 | 356 | 292.1 | 216 | 55 | 12-28.5 | 800 | 450 | 230 |
200 | 8 | 660 | 419 | 349.3 | 270 | 63 | 12-32 | 927 | 500 | 410 |
250 | 10 | 787 | 508 | 431.8 | 324 | 71 | 16-35 | 1257 | 600 | 625 |
300 | 12 | 838 | 559 | 489 | 381 | 74 | 20-35 | 1468 | 680 | 860 |
良好的品质、优良的服务 开云手机端在线入口-开云(中国)为你创造更多价值!
“开云手机端在线入口-开云(中国)”的期望,不断提升服务质量,精益求精,“真诚的服务”是“开云手机端在线入口-开云(中国)”永恒的主题。“开云手机端在线入口-开云(中国)”严格按照IS09001-2000 质量体系认证要求,质量严格把关, 责任到人,确保生产、销售、服务的健康运行。加强与用户沟通,竭诚为广大客户提供优良产品,至善至美服务。特此我厂做出以下承诺:
产品标准:
产品严格按照中国GB、HG 标准和美国API等标准设计、制造、验收。密封面硬度达到国家规定要求,宽度超过国家标准。
售前服务:
产品介绍,技术交流,非标产品设计,疑难解答。
售中服务:
守信合同,保证及时供货,随时保持与客户联系。 对特殊或复制的产品,我厂安排技术人员对用户进行产品使用、故障排除
售后服务:
1、“开云手机端在线入口-开云(中国)”牌产品品质期为自出厂起12个月,实行“三包”服务(包退、包换、保修)。
2、产品在使用中我厂定期组织技术、质检人员进行访问,征询用户对产品质量、 使用状况、改进意见等方面的反馈, 以便进一步提高产品质量。
3、对用户投诉质量问题,快速作出反应,售后服务人员在24-36小时(省外48小时)赶赴现场。
4、对售后服务,要求用户填写服务后的质量反馈信息表,并作出鉴定意见,以便提高开云手机端在线入口-开云(中国)的服务质量。
1、客户如对产品有特殊要求,须在订货合同中提供以下说明:
a、结构长度;
b、连接形式;
c、公称直径、全通径、缩径、管道尺寸;
d、运行介质及温度、压力范围;
e、试验、检验标准及其他要求
2、本厂可根据客户特定要求配置各类驱动装置。
3、如由客户提供确定的阀门类型和型号时,客户应正确说明其型号的含义和要求,在供需双方理解一致的条件下签订合同。
4、期货、订货的客户请先来电函详细告诉所需的阀门型号、规格、数量以及交货时间、地点,并按总的30%预定金或全额货款及时汇入我厂帐户,其余货款待发货前汇入,以便及时安排发货。
订单流程:
1、客户采购清单传真至,或来电咨询
2、收到客户采购清单,为客户提供阀门型号选型与报价(价格清单)。
3、具体商定:交货期、特殊要求等事宜。
订货须知:
1、客户如对产品有特殊要求,须在订货合同中提供以下说明:
|
|||||
|
|||||
2、本厂可根据客户特定要求配置各类驱动装置。
|
|||||
3、如由客户提供确定的阀门类型和型号时,客户应正确说明其型号的含义和要求,在供需双方理解一致的条件下签订合同。
|
|||||
4、期货、订货的客户请先来电函详细告诉所需的阀门型号、规格、数量以及交货时间、地点,并按总的30%预定金或全额货款及时汇入我厂账户, 其余货款待发货前汇入,以便及时安排发货。
|
售中服务:
守信合同,保证及时供货,随时保持与客户联系。
对特殊或复制的产品,我厂安排技术人员对用户进行产品使用、故障排除
售后服务:
1、“开云手机端在线入口-开云(中国)”产品品质期为自出厂起12个月,实行“三包”服务(包退、包换、保修)。
2、产品在使用中我厂定期组织技术、质检人员进行访问,征询用户对产品质量、使用状况、改进意见等方面的反馈,
以便进一步提高产品质量。
3、对用户投诉质量问题,快速作出反应,售后服务人员在24-36小时(省外48小时)赶赴现场。
4、对售后服务,要求用户填写服务后的质量反馈信息表,并作出鉴定意见,以便提高“开云手机端在线入口-开云(中国)”的服务质量。
声明 |
|